Welcome to ALTAIR

Binghatti Skyrise

Business Bay, Dubai

1-3BR bed422 sqft

AED 975,000

AED 2310.43 /sq ft

Overview

Bedroom

1-3BR

Area

Business Bay

Payment Plan

Payment Plan 70/30

Property Description

Binghatti Skyrise: Waterfront Luxury Living in Business Bay's Most Iconic Towers Binghatti Skyrise presents three distinctive towers along Dubai Water Canal, offering studios to 3-bedroom residences ranging from 422 to 1,991 sq. ft. This waterfront masterpiece by Binghatti Developers features breathtaking views of Burj Khalifa and Downtown Dubai skyline, complemented by resort-style amenities including a golf course, tennis courts, and an artificial beach.

Floor Plans

Type:Studio-type 1
Total Area:465 sq.ft
Starting Price:Ask for Price
Type:Studio-type 2
Total Area:476 sq.ft
Starting Price:Ask for Price
Type:1 bedroom Apartments-type 1
Total Area:1021 sq.ft
Starting Price:Ask for Price
Type:1 bedroom Apartments-type 2
Total Area:762 sq.ft
Starting Price:Ask for Price
Type:2 bedroom Apartments-type 1
Total Area:1667 sq.ft
Starting Price:Ask for Price
Type:2 bedroom Apartments-type 2
Total Area:1277 sq.ft
Starting Price:Ask for Price
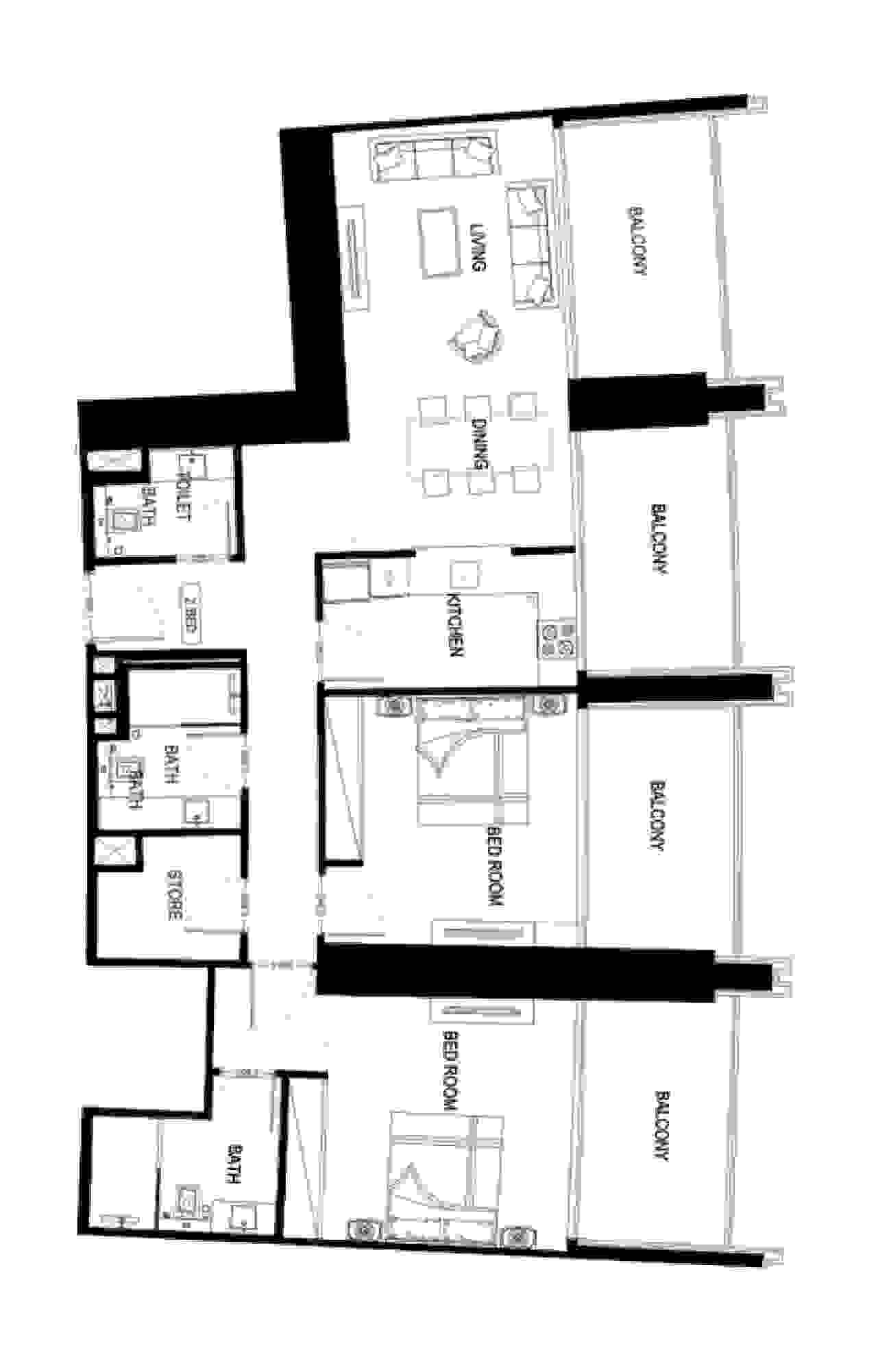
Type:3 bedroom Apartments-type 1
Total Area:1991 sq.ft
Starting Price:Ask for Price
Type:3 bedroom Apartments-type 2
Total Area:1838 sq.ft
Starting Price:Ask for Price

PaymentPlan

20%
Down payment
50%
On Construction
30%
Upon Completion

Location

Schedule a tour

Choose your preffered day

Phone
Phone